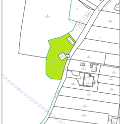
Ministerstvo vnútra SR - Centrum podpory Trnava, Kollárova 31, 917 02 Trnava ako správca majetku štátu v súlade so Zákonom č. 278/1993 Z. z. o správe majetku štátu v znení neskorších predpisov má v správe nehnuteľný majetok štátu zapísaný na LV č. 2037, k. ú. Sobotište, obec Sobotište, okres Senica:
• parcela KN-C č. 1548/1 - zastavaná plocha a nádvorie, o výmere 1.788 m2,
v spoluvlastníckom podiele Slovenskej republiky 1/1, v správe Ministerstva vnútra SR.
Všeobecná hodnota majetku bola stanovená Znaleckým posudkom č. 108/2025, vypracovaným znalcom Ing. Petrom Martiškom,
vo výške 14.125,20 EUR, všeobecná hodnota zaokrúhlene je 14.100,- EUR.
Uvedený nehnuteľný majetok v správe MV SR v súčasnosti neslúži ani v budúcnosti nebude slúžiť správcovi MV SR na plnenie úloh v rámci predmetu jeho činnosti alebo v súvislosti s ním.
Ministerstvo vnútra SR – Centrum podpory Trnava vyhlasuje v súlade s ustanoveniami zákona NR SR č. 278/1993 Z. z. o správe majetku štátu v znení neskorších predpisov elektronickú akciu na predaj majetku štátu, zapísaný na LV č. 2037 v k. ú. Sobotište, obec Sobotište, okres Senica, a to pozemku - parcely KN-C par. č. 1548/1.
Žiadame záujemcu, ktorý prejaví o kúpu ponúkaného nehnuteľného majetku štátu záujem, aby cenovú ponuku doručil v zalepenej obálke s heslom ,,VEA - Pozemok Sobotište – par. č. 1548/1 v k. ú. Sobotište – NEOTVÁRAŤ“, na ktorej záujemca uvedie svoj názov (obchodné meno, resp. meno a priezvisko) a adresu.
Písomnú ponuku je potrebné doručiť poštou alebo osobne v termíne najneskôr do konca lehoty na doručovanie ponúk na adresu: Ministerstvo vnútra SR, Centrum podpory Trnava, oddelenie majetkovoprávne, Kollárova 31, 917 02 Trnava. Pri osobnom odovzdaní ponuky je možné ponuku odovzdať počas stránkových hodín do podateľne do 15:00 hod.
Cenová ponuka musí obsahovať nasledovné náležitosti:
- u fyzických osôb: 1) meno a priezvisko, 2) trvalé bydlisko, 3) telefónny kontakt, 4) e-mailovú adresu záujemcu na komunikáciu počas prípravy a konania elektronickej aukcie, 5) špecifikáciu majetku podľa zverejneného oznámenia v ROPK, 6) účel využitia nehnuteľnosti, 7) ponúkanú cenu vyjadrenú jednou pevnou sumou v mene euro, a 8) podpis záujemcu;
- u právnických osôb: 1) obchodné meno, 2) sídlo, 3) IČO, 4) telefónny kontakt, 5) e-mailovú adresu záujemcu na komunikáciu počas prípravy a konania elektronickej aukcie, 6) meno a priezvisko zodpovednej osoby zabezpečujúcej komunikáciu počas prípravy a trvania elektronickej aukcie, 7) špecifikáciu majetku špecifikáciu majetku podľa oznámenia v ROPK, 8) účel využitia nehnuteľnosti, 9) ponúkanú cenu vyjadrenú jednou pevnou sumou v mene euro, 10) podpis osoby oprávnenej konať v mene spoločnosti.
Koniec lehoty na doručovanie ponúk: 27.02.2026.
Za deň doručenia sa považuje deň prijatia ponuky uvedený na odtlačku prezenčnej pečiatky správcu majetku štátu.
Vyhlásenie elektronickej aukcie je úspešné, ak aspoň dvaja záujemcovia splnili určené podmienky:
- nie sú osobou spriaznenou (§ 9 zákona č. 7/2005 Z. z. o konkurze a reštrukturalizácii
a o zmene a doplnení niektorých zákonov v znení neskorších predpisov) s iným záujemcom,
- predložili cenovú ponuku vyjadrenú pevnou sumou najmenej v požadovanej výške,
- riadne a včas uhradili zábezpeku, ak táto bola správcom požadovaná.
Po úspešnom vyhlásení elektronickej aukcie sa vykoná samotná elektronická aukcia (2. fáza), o ktorej bude správca záujemcov, ktorí splnili uvedené podmienky, včas informovať. Podľa § 8ab ods. 2 zákona č. 278/1993 Z. z. o správe majetku štátu správca vyzve najmenej päť dní pred začatím elektronickej aukcie všetkých záujemcov, ktorých cenové ponuky spĺňajú podmienky stanovené pri vyhlásení elektronickej aukcie, na predkladanie nových cenových ponúk v elektronickej aukcii. Výzvy na účasť v elektronickej aukcii budú záujemcom zaslané prostredníctvom e-mailu a budú obsahovať všetky potrebné informácie v súlade s § 8ab ods. 2 zákona č. 278/1993 Z. z. o správe majetku štátu, t. j. informácia o prístupovom hesle do elektronickej aukčnej siene, o technických parametroch potrebných na pripojenie do elektronického aukčného systému a o ďalších relevantných skutočnostiach ohľadom podmienok predkladania cenových ponúk, priebehu a trvania elektronickej aukcie. Východiskovou cenou elektronickej aukcie je najvyššia cenová ponuka aspoň vo výške primeranej ceny ponúkaná v rámci vyhlásenia elektronickej aukcie.
V elektronickej aukcii (2. fáza) môžu záujemcovia predkladať nové cenové ponuky, ktoré sú vyššie než predchádzajúca najvyššia cenová ponuka iného záujemcu.
Ak určené podmienky splní len jeden záujemca, správca s ním uzavrie kúpnu zmluvu bez vykonania elektronickej aukcie.
Ponuka, ktorá nebude predložená v lehote doručenia, alebo nebude spĺňať požadované podmienky, alebo nebude obsahovať cenu vyjadrenú pevnou sumou v EUR, nebude akceptovaná.
Ministerstvo vnútra SR si ako správca uplatňuje výhradu odstúpiť od ponuky, ak cenová ponuka žiadneho záujemcu nedosiahne výšku všeobecnej hodnoty pozemku.
Vyhlásenie elektronickej aukcie - pozemok v k. ú. Sobotište, parcela KN-C par. č. 1548/1 (https://www.ropk.sk/nehnutelny-majetok/detail/vyhlasenie-elektronickej-aukcie-pozemok-v-k-u-sobotiste-parcela-kn-c-par-c-15481)
Správca ponuky
Údaje o ponuke
Pozemok
UPOZORNENIE PRE ZÁUJEMCOV O PONÚKANÝ MAJETOK ŠTÁTU !
Záujem o ponúkaný majetok štátu možno prejaviť len písomnou žiadosťou včas doručenou správcovi. Zmyslom vyhlásenia elektronickej aukcie je zistiť okruh potenciálnych záujemcov o ponúkaný majetok štátu. Vyhlásenie elektronickej aukcie je úspešné, ak aspoň dvaja záujemcovia nie sú osobou spriaznenou (§ 9 zákona č. 7/2005 Z. z. o konkurze a reštrukturalizácii a o zmene a doplnení niektorých zákonov v znení neskorších predpisov) s iným záujemcom, predložili cenovú ponuku vyjadrenú pevnou sumou najmenej vo výške primeranej ceny alebo primeranej ceny po znížení a uhradili zábezpeku v plnej výške a v lehote určenej správcom, ak bola požadovaná. Po úspešnom vyhlásení elektronickej aukcie je správca povinný vykonať elektronickú aukciu. Ak určené podmienky splní len jeden záujemca, správca s ním uzavrie kúpnu zmluvu bez vykonania elektronickej aukcie. Zábezpeka záujemcu, s ktorým sa uzavrela kúpna zmluva, sa zarátava na splatenie kúpnej ceny. Zákon nepredpokladá verejné vyhodnotenie vyhlásenia elektronickej aukcie. Výsledok vyhlásenia elektronickej aukcie, bez uvedenia identifikačných údajov záujemcov, sa zverejní na tejto stránke. Správca osloví všetkých záujemcov, ktorí splnili uvedené podmienky. Ak vyzvaný záujemca neuzatvorí kúpnu zmluvu v primeranej lehote určenej správcom alebo správca odstúpi od kúpnej zmluvy, pretože kupujúci v dohodnutej lehote nezaplatil kúpnu cenu, zábezpeka prepadne v prospech štátu. Záujemcovi, ktorý nesplnil podmienky alebo ktorý odstúpil od svojej cenovej ponuky pred vyhodnotením vyhlásenia elektronickej aukcie (1. fáza elektronickej aukcie), sa zábezpeka vráti po jeho vyhodnotení. Záujemcovi, ktorý nebol vyzvaný na uzavretie zmluvy, aj keď splnil určené podmienky, sa zábezpeka vráti po úhrade kúpnej ceny kupujúcim, najneskôr do 90 dní od ukončenia elektronickej aukcie (2. fáza elektronickej aukcie). Ak sa na fyzickú osobu alebo právnickú osobu vzťahuje povinnosť zapisovať sa do registra partnerov verejného sektora, správca môže uzavrieť kúpnu zmluvu s takouto osobou len vtedy, ak je zapísaná v registri partnerov verejného sektora.
